Loại công trình
NHÀ 2 TẦNG
Thời gian hoàn thành
Loại công trình
NHÀ 2 TẦNG
Thời gian hoàn thành
Địa điểm
Hậu Lộc-Thanh Hóa
Diện tích đất
400m2
Diện tích xây dựng
250m2
Ngôi nhà tại Hậu Lộc, Thanh Hóa là lựa chọn lý tưởng cho những ai muốn tìm về không gian yên bình, ấm cúng bên gia đình. Với thiết kế 5 phòng ngủ, công trình mang đậm dấu ấn kiến trúc bản địa, gần gũi thiên nhiên, tạo sự thoải mái và kết nối chặt chẽ giữa các thành viên.


Ngôi nhà được xây dựng như một món quà yêu thương từ người con xa quê dành tặng bố mẹ, mang đậm hơi thở quê hương với mái ngói đỏ, tường gạch mộc và hệ thống cột gỗ vững chắc. Kiến trúc không chỉ giữ gìn bản sắc văn hóa mà còn phù hợp với điều kiện khí hậu địa phương, giúp không gian luôn mát mẻ và thông thoáng.
Ngôi nhà tận dụng tối đa ánh sáng và gió tự nhiên nhờ hệ cửa kính lớn, hiên rộng và sân vườn xanh mát. Những khoảng sân lát gạch, bồn cây nhỏ, cùng giếng trời thông thoáng giúp không gian trở nên hài hòa, mang đến cảm giác an yên, thư thái cho gia chủ.
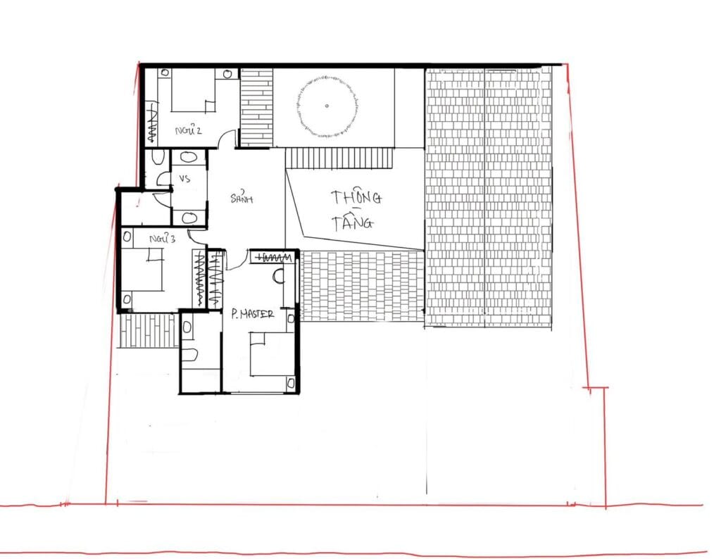
Không gian được bố trí khoa học với 5 phòng ngủ rộng rãi, phòng khách và bếp liên thông giúp tăng sự kết nối giữa các thành viên. Phòng thờ trang trọng, giữ gìn giá trị tâm linh truyền thống, trong khi các khu vực sinh hoạt chung được thiết kế mở, khoảng thông tầng tạo cảm giác thoải mái, gần gũi.
Không chỉ là nơi ở, ngôi nhà còn là chốn trở về sau những ngày xa quê, nơi đại gia đình sum họp mỗi dịp lễ Tết, cùng nhau tận hưởng những khoảnh khắc đáng nhớ. Sự kết hợp giữa kiến trúc bản địa và thiên nhiên mang đến một không gian sống lý tưởng, giúp mỗi người tìm lại sự cân bằng giữa nhịp sống hiện đại và giá trị truyền thống.
#thietkekientruc, #thietkenhavuon, #vikhihau, #connest, #kientrucbandia, #dichvukientruc,
Đăng ký ngay
để nhận tư vấn