Loại công trình
NHÀ 1 TẦNG
Thời gian hoàn thành
2024
Loại công trình
NHÀ 1 TẦNG
Thời gian hoàn thành
2024
Địa điểm
Quốc Oai
Diện tích đất
550m²
Diện tích xây dựng
160m²
Nằm tại huyện Quốc Oai, Hà Nội, ngôi nhà giữa thiên nhiên xanh mát, lưng tựa núi, mặt hướng ra cánh đồng, là nơi lý tưởng cho những ai muốn tránh xa sự ồn ào của thành phố. Với địa hình cao thoải, không gian này mang lại cảm giác bình yên, trong lành và kết nối mật thiết với tự nhiên.
Sau nhiều năm sống trong thành phố, vợ chồng anh cùng con trai đã quyết định chuyển về đây để tìm lại sự thư thái. Họ không chỉ muốn trải nghiệm cuộc sống yên bình, mà còn tạo điều kiện cho con trai học tại một trường danh tiếng gần đó.

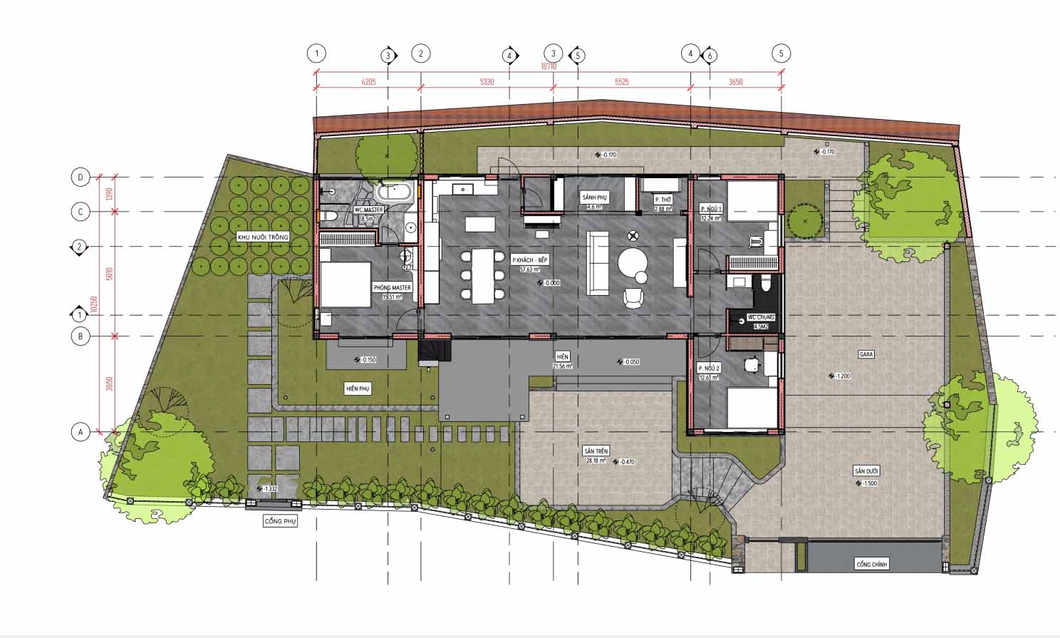
Trên khu đất rộng 550m², ngôi nhà chiếm diện tích xây dựng 160m², được thiết kế thông minh, tận dụng sự cao thấp của địa hình để tạo ra một khuôn viên sân vườn phong phú. Cửa kính lớn được bố trí khắp nơi, kết nối giữa không gian trong nhà và thiên nhiên bên ngoài, mang lại sự thông thoáng và gần gũi với môi trường tự nhiên.

Ngôi nhà sử dụng mái kèo sắt và ngói gốm, mang đậm nét truyền thống nhưng không kém phần hiện đại. Đặc biệt, sân thượng ở vị trí cao nhất cho phép cả gia đình tận hưởng tầm nhìn tuyệt đẹp ra xung quanh, là nơi hoàn hảo cho những buổi tiệc nhỏ hay chỉ đơn giản là ngắm cảnh chiều thanh bình.
Dự án không chỉ là nơi để ở, mà còn là không gian sống yên tĩnh, thư giãn. Đây là nơi mà mỗi thành viên trong gia đình có thể cảm nhận sự bình yên, hạnh phúc giữa thiên nhiên trong từng khoảnh khắc.

Đăng ký ngay
để nhận tư vấn