Loại công trình
NHÀ 1 TẦNG
Thời gian hoàn thành
2024
Loại công trình
NHÀ 1 TẦNG
Thời gian hoàn thành
2024
Địa điểm
Thanh Hoá
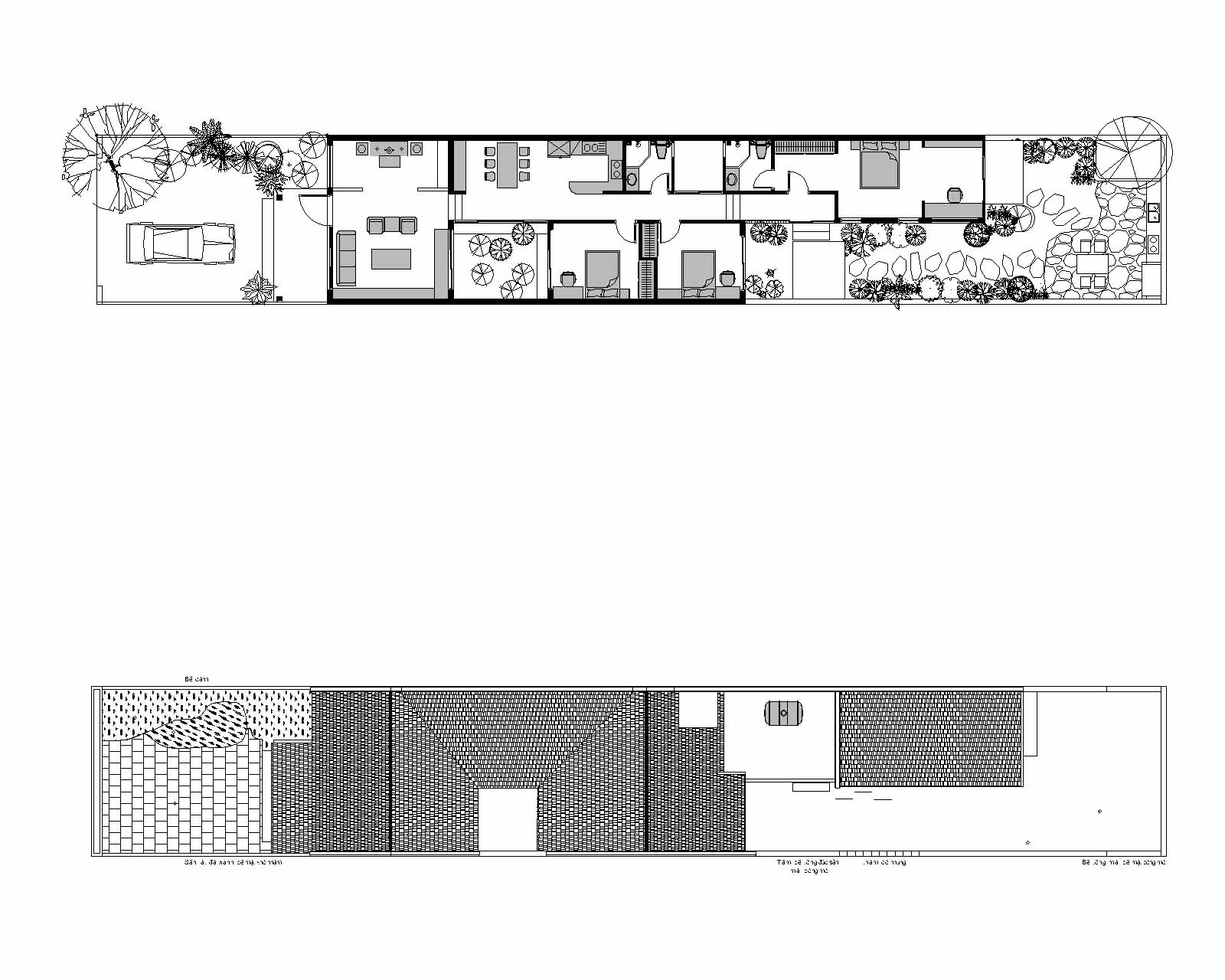
Diện tích đất
7x45m
Diện tích xây dựng
160m²
Tọa lạc tại huyện Bá Thước, Thanh Hóa – một vùng đất vẫn đậm nét văn hóa và kiến trúc truyền thống giữa dòng chảy hiện đại hóa, ngôi nhà này là món quà của người con trai dành tặng mẹ. Đây cũng là nơi anh trở về trong mỗi dịp nghỉ, lễ tết, với mong muốn xây dựng một không gian giản dị, gần gũi, tôn vinh sự mộc mạc và tinh thần dân tộc.

Với diện tích khu đất 7x45m và diện tích xây dựng 160m², ngôi nhà được thiết kế khéo léo theo phong cách truyền thống. Phòng khách liền kề phòng thờ tạo nên không gian ấm cúng, trang nghiêm. Các phòng ngủ được bố trí dọc theo chiều dài khu đất, xen kẽ với những khoảng giếng trời và không gian xanh, mang đến sự thoải mái và gần gũi với thiên nhiên.
Vật liệu địa phương như ngói gốm và khung sắt bọc gỗ được sử dụng để đảm bảo tính bền vững và gợi nhắc đến những ngôi nhà cổ truyền thống Việt Nam. Đặc biệt, ngôi nhà còn có không gian trưng bày ảnh các vị lãnh tụ Việt Nam – nơi lưu giữ ký ức và truyền thống gia đình trong từng chi tiết.

Ngôi nhà không chỉ là nơi sinh sống, mà còn là nơi kết nối con người với thiên nhiên, nơi ký ức và giá trị truyền thống gia đình được bảo tồn và phát huy.
Lướt lên phía trên để xem được hình ảnh chi tiết về nội thất và ngoại thất của dự án nhé!
Đăng ký ngay
để nhận tư vấn